top of page

LYEE
ELDERLY 
COMMUNITY
CENTER
SITE : SAL COLLEGE, JALAN TUN RAZAK
a place to encourage retirees to improve their retirement lifestyle quality by having different kinds of activities with others retirees. Elderly can choose the activities that they want based on their current mood.

Issue: Low Living Quality after Retirement
Concept : The Crespucular
Element : Sunray
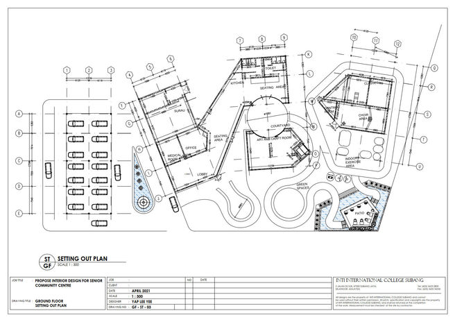
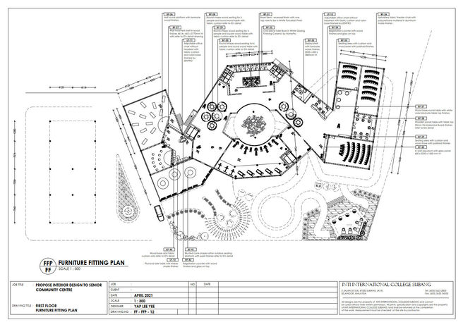
Research
Technical Drawing
Perspective
Presentation Boards




DISSERTATION
bottom of page


















































