top of page

LYEE
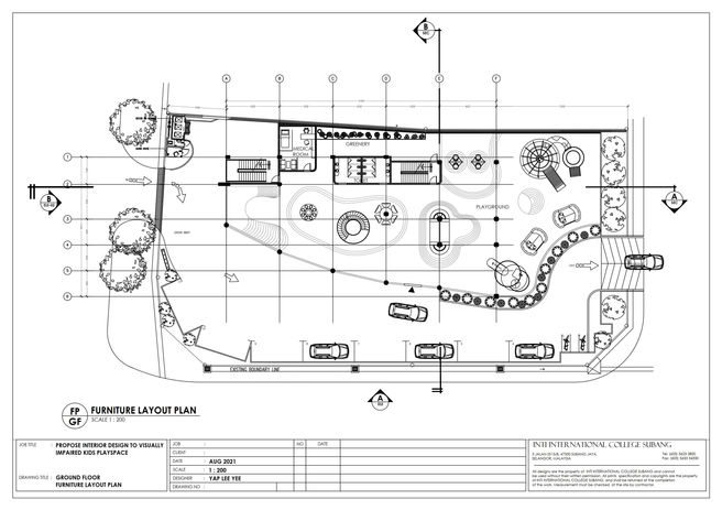
SENSORY PLAYGROUND & RESEARCH CENTER
SITE : NZ WHEELS, BANGSAR

a place that included tactile and sound sensory play structure that allows visually impaired kids to play freely with the play structures
Issue: Less opportunity for visually impaired kids playing in playground
Exploration on Peanut Shell
Research
Technical Drawing
Perspective



Presentation Boards



bottom of page






























































